Appartamento in vendita a Moncalieri

In vendita
Moncalieri - Via Don Minzoni, 4
137.000 €
71
Superficie
1
Camere
1
Bagni
Descrizione
VENDITA MONCALIERI Zona Pleiadi Via Don Minzoni
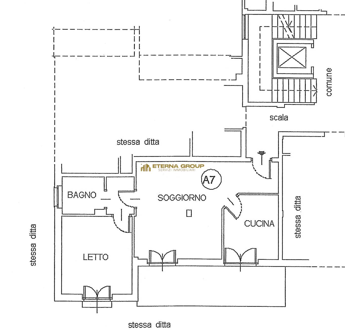
In posizione comoda a tutti i servizi, nelle immediate vicinanze di scuole, supermercati e negozi di ogni genere, asl, ospedale e mezzi pubblici all'interno di uno stabile signorile, proponiamo al terzo piano e penultimo con ascensore, appartamento ampio e luminoso, disposto in posizione angolare su un’area e mezza e composto da ingresso su soggiorno, cucina, camera da letto, disimpegno, ripostiglio bagno, un ampio terrazzo e cantina. L'unità si presenta in buone condizioni interne ed è dotato di riscaldamento autonomo. L’immobile è interessante perché si presta ad essere trasformato in trilocale e risulta interessante anche ad uso investimento..

Le presenti informazioni e le planimetrie non costituiscono proposta contrattuale e pertanto devono ritenersi meramente illustrative


ETERNA GROUP SERVIZI IMMOBILIARI
Sede operativa: Moncalieri - Strada Genova n. 54
tel. 011.8017600 - info@eternaimmobiliare.it
Caratteristiche
Codice:
EG#82
Città:
Moncalieri (Le Pleiadi)
Categoria:
Appartamento
Spese condominiali:
940 € / anno
Locali:
3
Camere:
1
Bagni:
1
Mq:
71
Terrazzi:
1
mq Terrazzo:
15
Piano:
3
Anno:
2006
Classe energetica:
D
71,35 kWh/m²a
Stato Immobile:
Buono
Grado:
Signorile
Posizione:
Periferia
Panorama:
Vista Aperta
Orientamento:
Sud
Lati Liberi:
1
Arredi:
Possibilità
Tipo Soggiorno:
Soggiorno
Tipo Cucina:
Abitabile
Riscaldamento:
Autonomo
Tipo Riscaldam.:
Caldaia
Tipo Impianto:
Radiatori
Fonte Energetica:
Metano
Acqua Calda:
Autonoma
Raffrescamento:
Split
Infissi:
Legno Doppio Vetro
Serramenti:
Buono
Persiana:
Tapparella PVC
Pavim. Notte:
Parquet
Pavim. Bagno:
Ceramica
Accesso Disabili:
Nessuna Barriera
Accessori
Aria Condizionata
Ascensore
Doppi Vetri
Porta Blindata
Tende da sole
Video Citofono
Planimetrie
Foto 360°
SOGGIORNOSOGGIORNOCUCINADISIMPEGNOCAMERA DA LETTOSERVIZIO
Mappa
Via Don Minzoni, 4 - Moncalieri (TO)
QR Code
QR Code
Cookie preference